Semi-hidden frame glass curtain wall

Semi-hidden frame glass curtain wall is divided into two types: horizontal vertical hidden and vertical vertical hidden, the former horizontal border visible, vertical border hidden, the latter vertical border visible, horizontal border hidden. Product features include: wide vision, beautiful and generous; Stable structure, safe and reliable; Convenient installation, simple maintenance; Flexible application to meet a variety of architectural design needs.

Glass curtain walls are a transformative feature in modern architecture, combining beauty, functionality, and sustainability. The right choice of materials, design, and installation techniques can lead to a highly efficient, aesthetically pleasing, and durable building façade. For any building project, it’s crucial to choose the appropriate type of curtain wall system to meet both the structural requirements and aesthetic goals.

Product model120≦3.0m130≦3.3m140≦3.6m160≦5.0m180≦5.5m
Section120x60x3mm130x60x3mm140x65x3mm160x75x3mm180x80x3mm
Glass6mmLOW-E+9A+6mm6mmLOW-E+12A+6mm8mmLOW-E+12A+8mm10mmLOW-E+12A+10mm8mm
Auxiliary materialEmbedded partsClamp memberSilicone sealant for sealingStructural adhesiveother

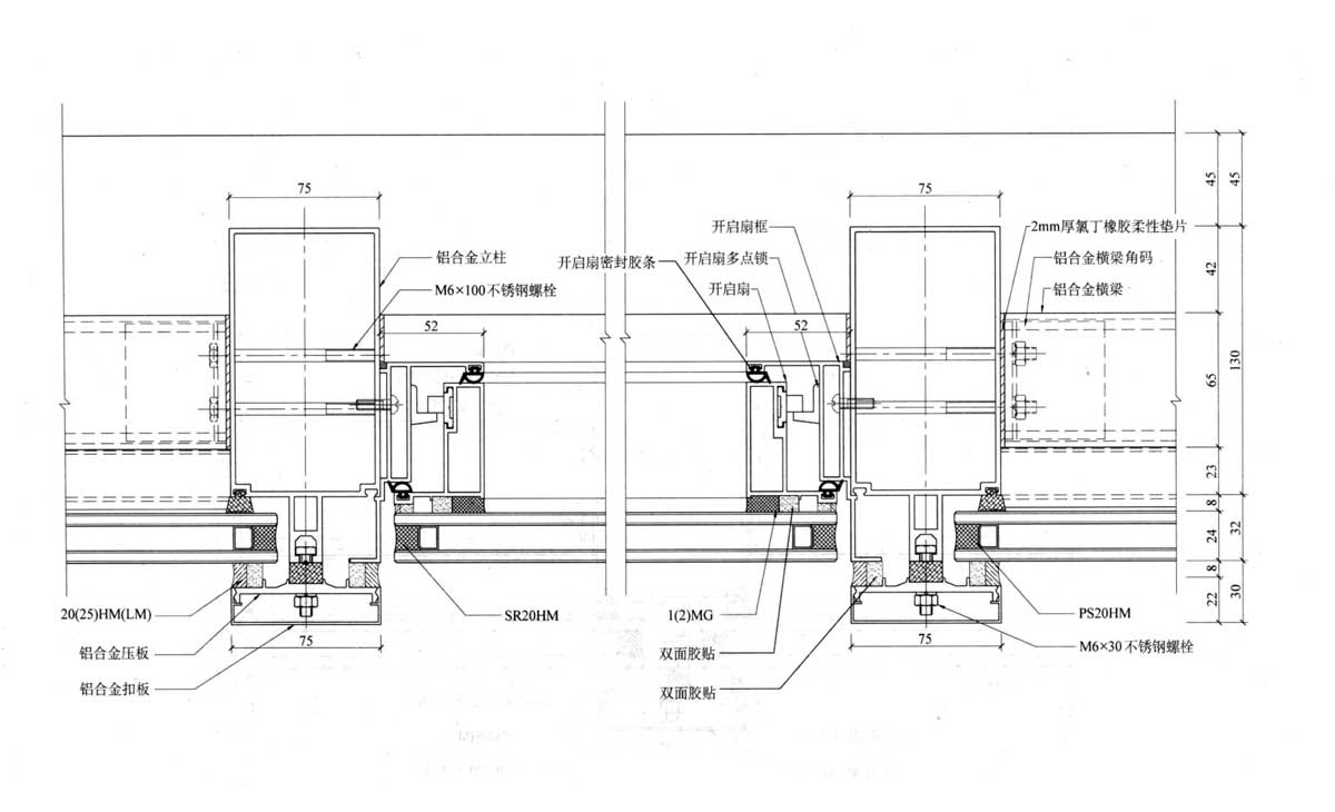
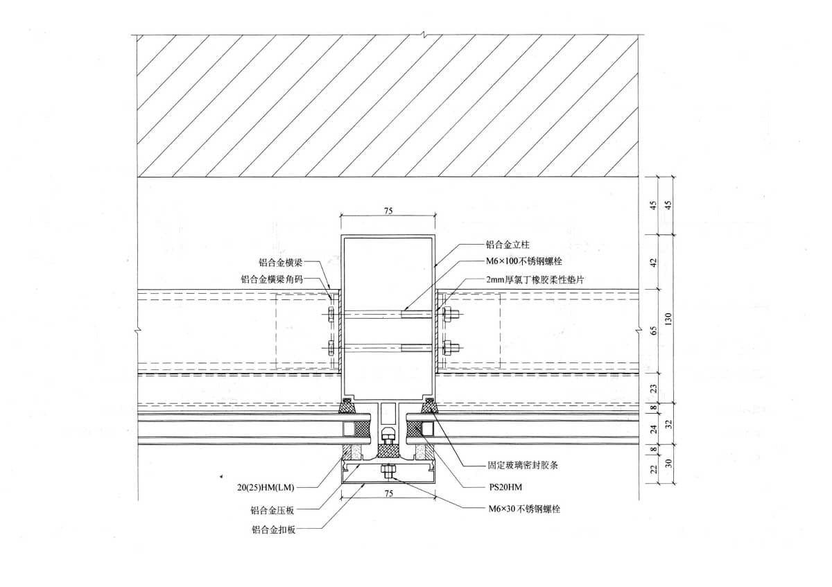
Semi-hidden frame curtain wall structure diagram

Semi-hidden frame glass curtain wall finished drawing

Types of Glass Curtain Walls

  1. Stick-Built Curtain Walls:
    • Components of the curtain wall (framing, glass, and other elements) are delivered to the construction site in individual pieces and assembled piece-by-piece.
    • Advantages: Flexibility for complex designs and custom detailing. Ideal for projects where materials need to be customized or adapted on-site.
    • Disadvantages: Longer installation time and more labor-intensive.
  2. Unitized Curtain Walls:
    • Pre-fabricated in sections (or “units”) in a factory and then transported to the site for installation as large panels.
    • Advantages: Faster installation, higher precision, and reduced on-site labor costs.
    • Disadvantages: Limited flexibility once sections are prefabricated.
  3. Structural Glazing Curtain Walls:
    • Uses a special adhesive system to attach the glass directly to the frame, without the need for visible framing members.
    • Advantages: Cleaner aesthetic with minimal framing visible, offering a sleek and modern appearance.
    • Disadvantages: More expensive and complex installation process

Common Applications of Glass Curtain Walls

  1. Commercial Buildings:
    • Used extensively in office buildings, malls, and public spaces. The transparency of the glass maximizes the view, provides natural light, and enhances the appearance of the building. High-performance glazing is often incorporated for energy efficiency.
  2. Residential Buildings:
    • High-end luxury residential projects often incorporate glass curtain walls to create dramatic views, enhance daylighting, and offer a modern architectural style.
  3. Transportation Hubs:
    • Airports, train stations, and bus terminals often use large glass curtain walls to provide open, spacious environments, while still protecting the interior from weather and reducing noise.
  4. Mixed-Use Developments:
    • For large-scale urban projects, glass curtain walls can be used to connect residential, retail, and office spaces, creating a cohesive design and allowing natural light to flow through the complex.

评价

目前还没有评价

成为第一个“Semi-hidden frame glass curtain wall” 的评价者

您的邮箱地址不会被公开。 必填项已用 * 标注