Marble stone curtain wall

The non broken bridge sliding door is a high-performance door and window product carefully crafted by us. It is made of high-quality aluminum alloy material and has the characteristics of both durability and aesthetics. Whether it’s a residential or commercial building, it can add a sense of modernity and practicality to your space.

Aesthetics of stone curtain wall
Natural material: stone curtain wall uses natural stone, such as granite, marble, etc., retaining the natural texture and color of stone, giving people a noble, elegant and natural feeling, which can enhance the quality and grade of the building.
Strong decorative effect: the color of stone is rich and varied, from light beige, white to deep black, gray, etc., which can meet different architectural styles and design requirements. Its texture is also ever-changing, such as landscape pattern, cloud pattern, straight pattern, etc., which can add a unique artistic effect to the appearance of the building.

Stone curtain wall

stone curtain wall is a type of non-structural exterior cladding system commonly used in modern architecture. It is made from stone panels, which are mounted on a building’s frame. The purpose of a stone curtain wall is to provide a decorative and protective outer layer, while not contributing to the building’s structural integrity. Here are some key aspects of stone curtain walls:

 

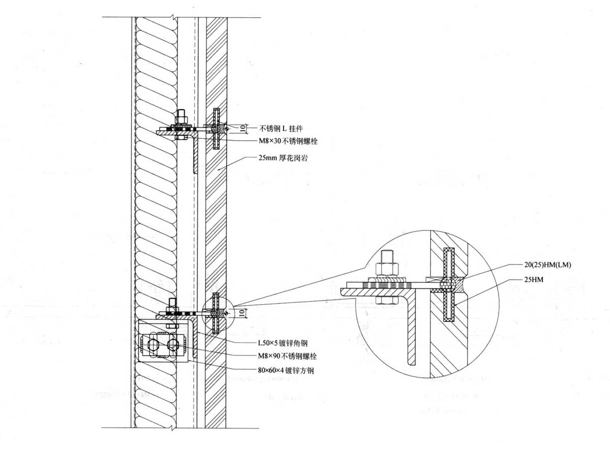
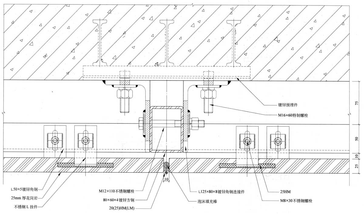
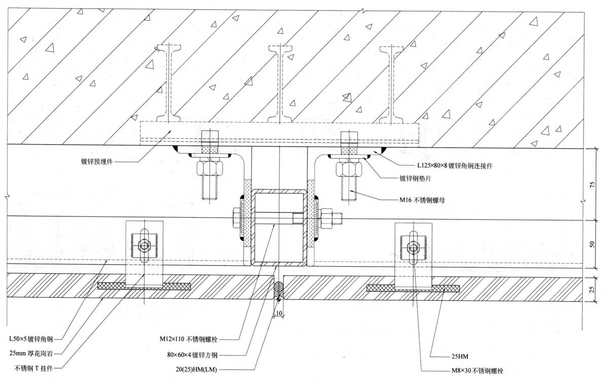
Aluminum curtain wall structure diagram

    

1. Material Composition
  • Stone Panels: These can be made from a variety of natural stones, such as granite, limestone, marble, sandstone, or slate. The stone is typically cut into thin panels or slabs to reduce weight.
  • Backing Structure: The stone panels are typically attached to a steel or aluminum frame that is anchored to the building’s main structure.
2. Design Features
  • Aesthetic Appeal: Stone curtain walls offer a high-end, natural appearance that blends well with a variety of architectural styles. The texture, color, and pattern of the stone can add elegance and sophistication to a building’s exterior.
  • Durability: Stone is highly durable and weather-resistant, making it ideal for buildings exposed to harsh climates. Stone curtain walls offer resistance to wind, rain, and UV rays.
  • Low Maintenance: Since stone is naturally resistant to wear and degradation, it requires less maintenance compared to other materials like wood or painted surfaces.
3. Performance Benefits
  • Thermal Insulation: The thickness of stone panels provides an additional layer of insulation, which can help regulate the internal temperature of the building, contributing to energy efficiency.
  • Sound Insulation: Stone is an excellent soundproofing material, which can help reduce noise pollution in urban environments.
  • Fire Resistance: Stone is non-combustible, making it a fire-resistant material ideal for exterior applications.
4. Applications
  • High-Rise Buildings: Stone curtain walls are commonly used in skyscrapers and office buildings due to their aesthetic qualities and ability to provide a high level of weather resistance.
  • Residential Buildings: Some luxury residential buildings also use stone curtain walls to create a distinctive appearance.
  • Renovations: In some cases, stone curtain walls are applied to older buildings as part of renovation efforts to improve the exterior look and performance.
5. Installation Considerations
  • Weight: Stone panels can be quite heavy, so the building’s frame must be designed to support the added load. This may require reinforcement of the building structure.
  • Cost: Stone is more expensive than many other curtain wall materials, such as glass or aluminum, due to the cost of materials and installation.
6. Advantages
  • Aesthetic Quality: Stone has a timeless, natural appearance that is highly valued in architectural design.
  • Weather Resistance: Stone is impervious to weathering and can withstand harsh environmental conditions.
  • Sustainability: Natural stone is a sustainable material if sourced responsibly, and it has a long lifespan, making it a cost-effective option over time.
7. Disadvantages
  • Weight: The weight of stone can require stronger structural support and more complex installation techniques.
  • Cost: Stone curtain walls can be expensive compared to other types of cladding materials, such as glass or metal.
  • Limited Flexibility: Stone is rigid and not as adaptable to structural movement, which can be a limitation in some buildings.
Conclusion

Stone curtain walls are a premium choice for building facades, offering beauty, durability, and long-lasting performance. They are particularly suited for high-end commercial, residential, or institutional buildings where aesthetic appeal and resilience are key priorities. However, they come with higher initial costs and installation complexities, so careful consideration is required for their use in a project.


Project Consultation

Custom Design

Construction Management

After Sales Guarantee

评价

目前还没有评价

成为第一个“Marble stone curtain wall” 的评价者

您的邮箱地址不会被公开。 必填项已用 * 标注