An aluminum curtain wall is a type of building façade system that utilizes aluminum framing, often combined with glass, to create an outer shell for the building. Unlike traditional masonry walls, an aluminum curtain wall is non-load-bearing, meaning it does not carry the weight of the building’s structure but instead acts as an exterior cladding that protects the interior from the elements while enhancing the building’s aesthetics. Aluminum is commonly chosen due to its lightweight properties, strength, and resistance to corrosion.


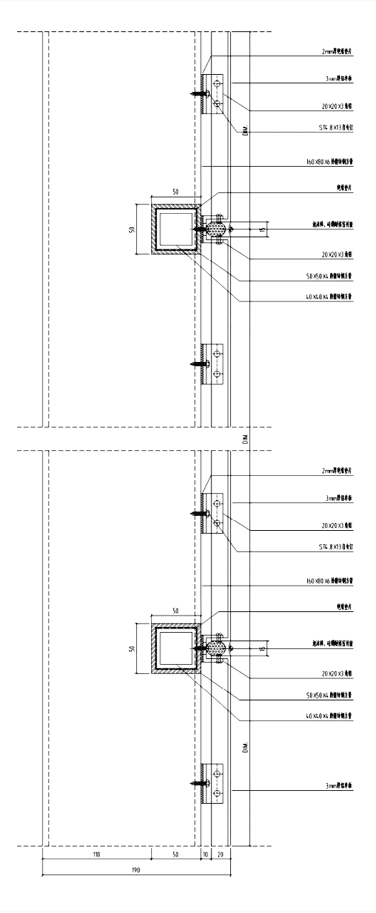
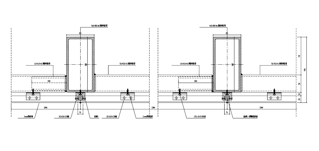
Aluminum curtain wall structure diagram

Aluminum curtain wall structure diagram



Aluminum curtain wall engineering drawing

Types of Aluminum Curtain Walls
- Unitized Curtain Wall:
- Description: In a unitized system, large prefabricated panels of the curtain wall (including the aluminum frame and glazing) are pre-assembled in a factory before being shipped to the construction site for installation. This method speeds up installation and reduces on-site labor.
- Advantages: Quicker installation, consistent quality control, and minimal weather exposure during construction.
- Stick-Built Curtain Wall:
- Description: In a stick-built system, the curtain wall is assembled piece by piece on-site, with the aluminum framing components and glass panels installed sequentially. This system is typically used for more customized or complex designs.
- Advantages: Flexibility in design, ideal for irregularly shaped or custom projects, and can be adjusted more easily during construction.
- Semi-Unitized Curtain Wall:
- Description: A hybrid of unitized and stick-built systems, the semi-unitized system involves pre-assembly of sections of the curtain wall in the factory, which are then assembled on-site.
- Advantages: Faster than traditional stick-built, but still allows for some customization on-site.
Applications of Aluminum Curtain Walls
- Commercial Buildings:
- Aluminum curtain walls are commonly used in the construction of office buildings, retail centers, hotels, and other commercial properties. They create a sleek, modern look and provide abundant natural light to the interior.
- High-Rise Residential Buildings:
- In residential towers, aluminum curtain walls offer a high degree of visibility and natural light, enhancing the living experience for residents while also offering durability and protection against the elements.
- Public Buildings and Institutions:
- Government buildings, educational institutions, and cultural centers often utilize aluminum curtain walls to combine performance with aesthetic appeal, creating welcoming and functional environments.
- Green Buildings:
- With the rise of sustainable design practices, aluminum curtain walls are increasingly being used in eco-friendly buildings. When paired with energy-efficient glazing and integrated green technologies, aluminum curtain walls contribute to a building’s LEED or other green building certifications.
Conclusion
Aluminum curtain walls provide a highly functional, aesthetically versatile, and durable solution for modern building facades. Their lightweight nature, resistance to corrosion, and energy-efficient potential make them ideal for a wide range of architectural applications. Whether for a high-rise commercial tower or a residential building, aluminum curtain walls offer both performance and visual appeal, with the ability to adapt to various design requirements and environmental conditions.
Project Consultation
- Project drawings communication
- Market trend analysis
- Evaluate the design proposal
- Technical consultation & design proposal
- Structural and functional optimization
Custom Design
- 3D modeling & visualization
- Measurement assistance
- Design by custom drawing
- Exclusive customization
- Diversified choices
Construction Management
- Material inspection
- Construction guidance
- All construction material supply
- Detailed description of construction drawings
- Progress management and coordination
After Sales Guarantee
- Completion acceptance
- Professional installation
- Satisfaction survey
- Maintenance and upkeep services
- Post maintenance consultation







评价
目前还没有评价